The Horizon Retreat

The Horizon Retreat
Over the last couple of years, the Chinese government has been partlyshifting focus towards redeveloping and sustaining the countryside, recognizingthe impact of urbanization on both the urban and rural environment. Attractingrural tourism is one of the main tools utilized. Adventurous developers andprivate investors are now following these footsteps by taking on more and morerural redevelopment projects. The countryside around Anshun in Guizhou provinceis one of the zones heavily affected by urbanization. Mostly young people haveleft their rural residences leaving them behind in further emptyingghost-villages. Superimpose was approached to redevelop such a village into arural holiday retreat and bed and breakfast location for citizens.






01/25
The Horizon Retreat
Over the last couple of years, the Chinese government has been partlyshifting focus towards redeveloping and sustaining the countryside, recognizingthe impact of urbanization on both the urban and rural environment. Attractingrural tourism is one of the main tools utilized. Adventurous developers andprivate investors are now following these footsteps by taking on more and morerural redevelopment projects. The countryside around Anshun in Guizhou provinceis one of the zones heavily affected by urbanization. Mostly young people haveleft their rural residences leaving them behind in further emptyingghost-villages. Superimpose was approached to redevelop such a village into arural holiday retreat and bed and breakfast location for citizens.
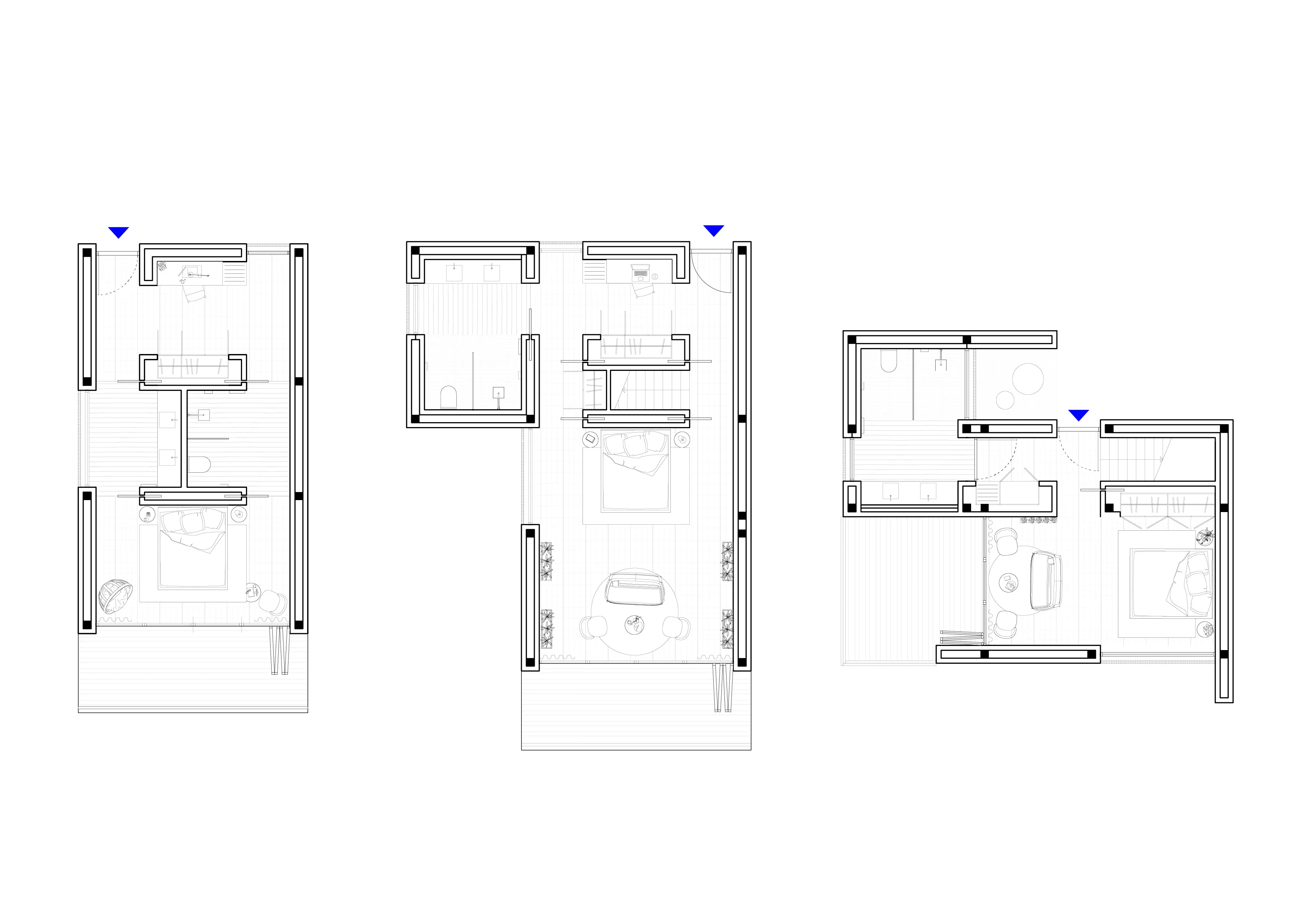
Most of the abandoned structures could unfortunately not bereused after going through years of decay. Superimpose looked for the better-maintained structures to save them from demolition and transform theminto public amenity buildings with a restaurant, gym, swimming pool, yogastudio and mountain library. Furthermore Superimpose used the existingvillage footprint to develop a 41-unit B&B masterplan. The masterplan is designed in such a way that it respects the mountain landscape and resembles characteristics of the once thriving village. The masterplan layout integratedvillage squares and small alleys that were once vital for the communityatmosphere.
The interior and exterior of the villages are designed to be suitable to the environment. The design is kept simple and calm, promoting a serene lifestyle connected to nature. The houses are oriented to provide the best views towards the karst mountain landscape. Dealing with the hilly terrain, whilst providing comfort, safety and accessibility has been a mayor challenge during the design stages.