Shared Living
Shared Living
For staff members of Chinese developer, Vanke, Superimpose transformed a former outdated hotel into fresh service apartments with communal functions on the ground floor. Similar to previous transformation projects, Superimpose used their proven strategy on this project of ‘minimum intervention with maximum result’ to bring back life to the building.
On the ground floor a new corridor along the main façade connects the shared program like a gym, shared living room, dining room, kitchen, library and game room. By positioning the new corridor at the façade instead of in the usual middle of the plan, there will be a better connection between in and outside where there are more shared functions located such as a barbeque, large outdoor dining table, Zen areas and an outdoor gym area. The corridor at the façade also provides more daylight into the otherwise dark spaces.














01/25
Shared Living
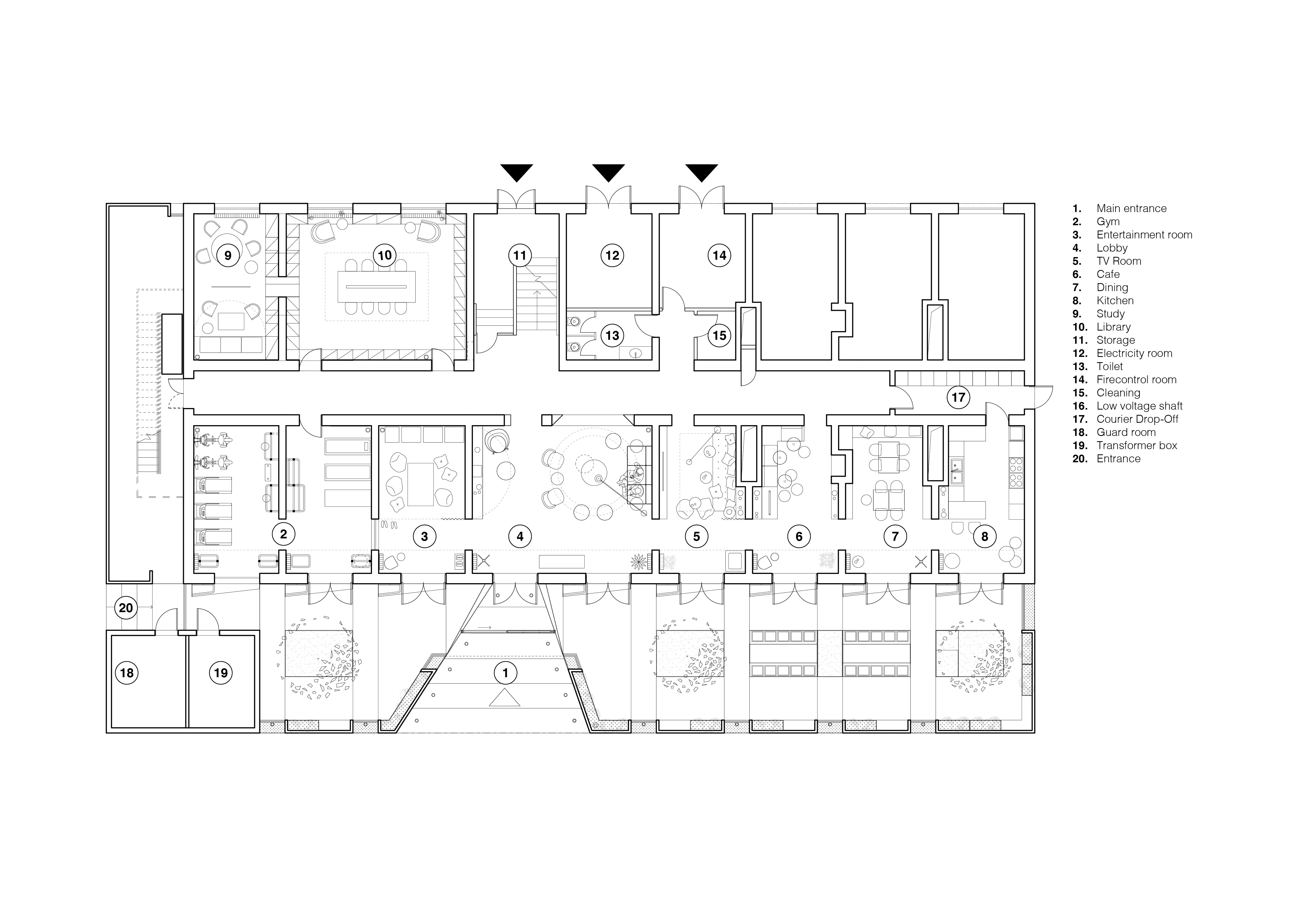
For staff members of Chinese developer, Vanke, Superimpose transformed a former outdated hotel into fresh service apartments with communal functions on the ground floor. Similar to previous transformation projects, Superimpose used their proven strategy on this project of ‘minimum intervention with maximum result’ to bring back life to the building.
On the ground floor a new corridor along the main façade connects the shared program like a gym, shared living room, dining room, kitchen, library and game room. By positioning the new corridor at the façade instead of in the usual middle of the plan, there will be a better connection between in and outside where there are more shared functions located such as a barbeque, large outdoor dining table, Zen areas and an outdoor gym area. The corridor at the façade also provides more daylight into the otherwise dark spaces.
The apartments are designed to provide as much comfort and sense of luxury as possible within a tight space. The fixed wall furniture elements are well considered modules that combine functionality with comfort. A carefully selected color scheme is applied to provide a fresh but cozy look to the interior space.
Playfully three-dimensional window-modules with integrated air-conditioning units are applied to the façade to give the façade a young yet organized appearance. The dark grey modules are contrasted with green stucco, which gives the façade a more modern appearance. On the ground floor, the window modules integrate storage space and spans from floor to ceiling providing an abundance of natural daylight to the interior.