The Soft-Loft

The Soft-Loft
After Superimpose delivered Y-Loft city in Changzhi, their client asked them to take care of the interior design of the lofts in an adjacent development that followed the approach of Y-loft City. In line with the design of the towers, Superimpose proposed a modern-looking, open, and bright interior suitable for and focused on the Y-generation.















01/25
The Soft-Loft
After Superimpose delivered Y-Loft city in Changzhi, their client asked them to take care of the interior design of the lofts in an adjacent development that followed the approach of Y-loft City. In line with the design of the towers, Superimpose proposed a modern-looking, open, and bright interior suitable for and focused on the Y-generation.
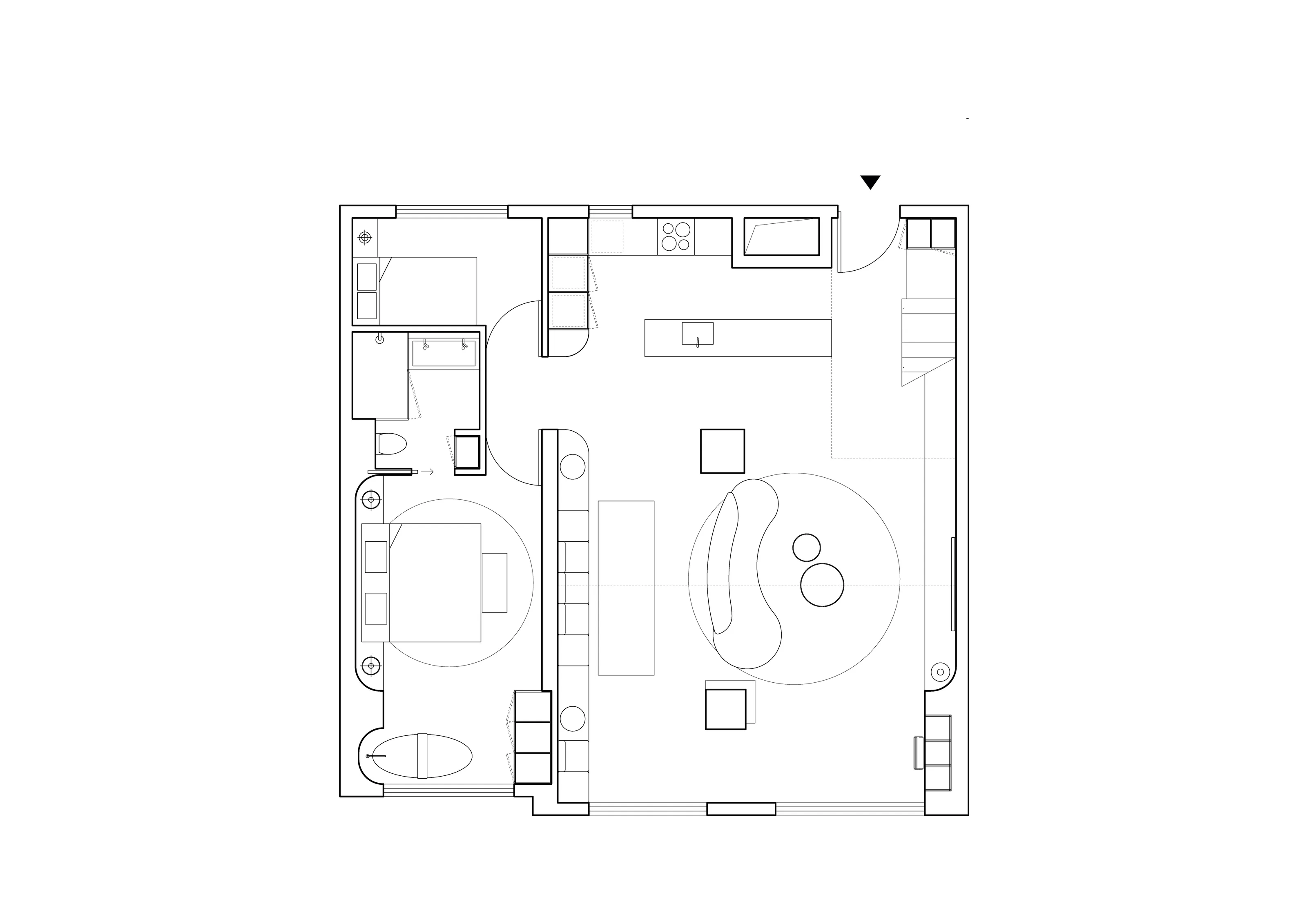
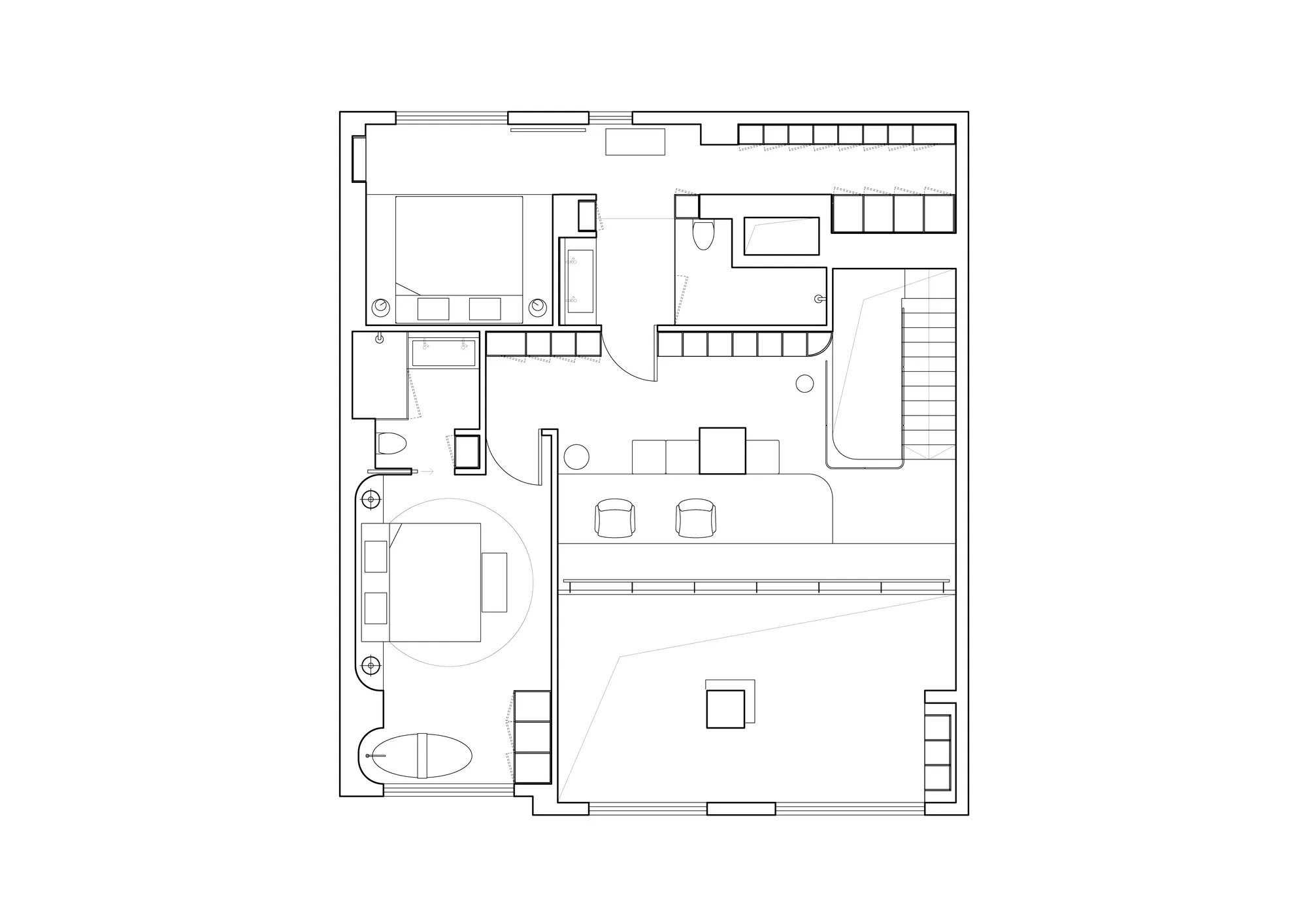
One of the problems of residential loft-developments is that local Chinese building codes set tight height-constraints to the lofts. Consequently, Superimpose’s main design objective was to make the best use of the low loft-space by applying smart structural strategies and by arranging spaces in such a way that the effect of beams in the living areas would be minimalized and integrated by design.
Superimpose chose to open up the mezzanine floor to create double-height voids at tactical places: a large atrium void along the main façade brings an abundance of daylight to the living and dining areas. By placing the stairs near the main entrance in an enlarged stair-void, the apartment appears spacious upon entering.
In order to make best use of the recessed second floor mezzanine along the large atrium void, the concept of a library as the showcase of the house is integrated. Typically, home-libraries and studies in China are placed in separate small rooms. The recent epidemic situation has taught us to look at these spaces for home working as a more integral part of interior design.
The appearance of the apartment is meant to be a calm and serene environment, softened by the use of light colored finishes, wood and the use of curved elements.