The Arcade

The Arcade
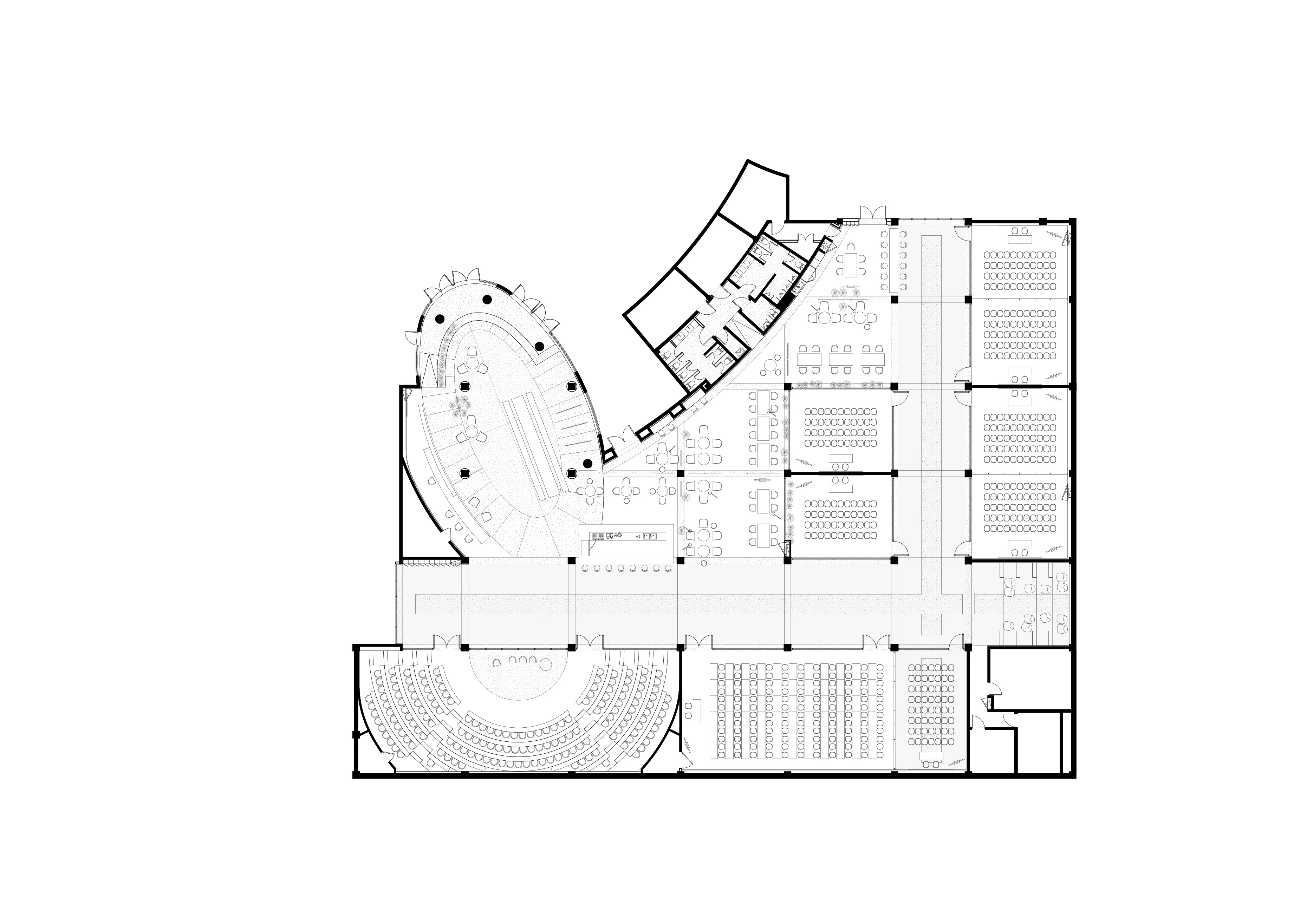
How can a dark basement of a commercial mixed-use development be transformed into a warm and pleasant conference center that appeals to a young, trendsetting customer target group? Creating this interior design project in Hangzhou presented Superimpose with that as its main design challenge.





















01/25
The Arcade
How can a dark basement of a commercial mixed-use development be transformed into a warm and pleasant conference center that appeals to a young, trendsetting customer target group? Creating this interior design project in Hangzhou presented Superimpose with that as its main design challenge.
Nearly all applied design strategies in this project we meant as a response to this challenge. Firstly Superimpose chose to apply the concept of an arcade to this project. Typically with this architectural typology, integrated roof lights along a linear space let in natural daylight. In the design of the conference center, two linear floating volumes of light that mimic the color of natural daylight resemble this situation.
Similar to the typical arcade, façade-like modules are inserted in between the exposed concrete columns of the basement and alongside the arcade. Meeting rooms and auditoriums are located behind those white modules. The module of the auditorium can be fully opened so that the auditorium can be expanded or become part of the reception area.
When entering the conference center, this visitor will instantlynotice another element meant as a practical solution to the dark nature of the basement. A large floating oval shape has various types of integrated light sources that help in making the transition from outside to inside easier for the eye. The reception area doesn’t boost many furniture pieces to make it easily convertible to an event space. Daylight coming from the adjacent sunken courtyard spreads through the basement more easily by keeping the ceiling open and exposed. Lastly, programmatic functions such as an area called ‘the living room’ and a coffee bar are added in a communal open space in order to provide a comfortable place for working and spending the day.