The Westlake Theater

The Westlake Theater
To reallocate and transform an old and run-down theater in Hangzhou’s city center and nearby the famous Westlake, Superimpose proposed a new theater typology that suits the current era. Together with the developer, Superimpose proposed a strategy of adding complementary program such as a coffee bar, restaurants, a co-working space and a bookstore to attract footfall to the development.




01/25
The Westlake Theater
To reallocate and transform an old and run-down theater in Hangzhou’s city center and nearby the famous Westlake, Superimpose proposed a new theater typology that suits the current era. Together with the developer, Superimpose proposed a strategy of adding complementary program such as a coffee bar, restaurants, a co-working space and a bookstore to attract footfall to the development.
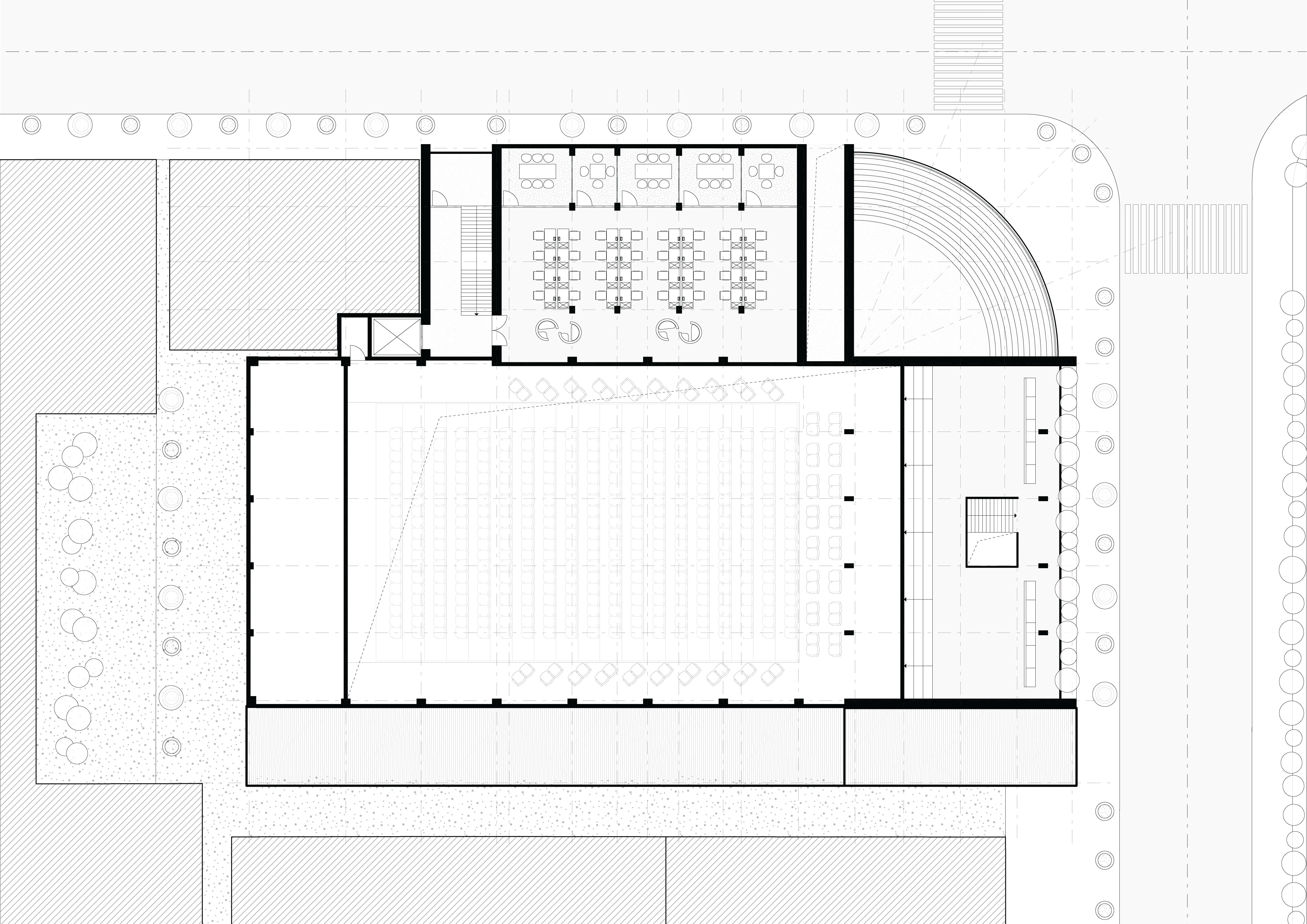
The theater part has been converted into a fully adaptable and reconfigurable event space. It can change its function from theater to exhibition space, ballroom, market square and more. Annexing the adjacent restaurant, coffee bar or bookstore can temporarily expand the floor area of the event space. The transformed theater will get a more open and public character. At the corner of the building, a publically accessible outdoor theater will be integrated. Also it’s possible to fully open parts of the façade on ground floor to blur the boundary between in and outside. Program like the coffee bar and restaurants can spill out towards this outdoor space as well.
The proposed new façade refers to the scale of the surrounding building blocks and improves urban integration of the building volume. Vertical façade columns break down the scale of the building into smaller more suitable elements. In between these vertical columns, horizontal bars provide the right balance between openness and privacy for the program behind the facade.